スタッフブログ
Staff Blog
お気軽にご相談ください!
06-6923-9000
お問い合わせ
Staff Blog
JP 尼崎市東難波町新築戸建
標準仕様:省エネZEH水準+耐震等級2
■所在:尼崎市東難波町3丁目
■交通:JR阪和線 上野芝駅 徒歩20分
■土地面積;93.62㎡ ※私道負担面積含む
■接道:北側幅員約7m 接面約6.5m
■用途地域:第1種住居専用地域 準防火地域
■建ぺい率/容積率:60%/200%
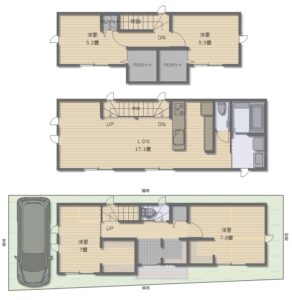
■新築建物 延床予定面積:約102㎡
■現況:更地
間取プラン図 ↡↡

安心の10年保証
【専門業者による徹底した検査と保険】国土交通大臣指定の住宅瑕疵担保責任保険法人『まもりすまい保険』への加入による安心の10年保証付きです。
Contactご所有の不動産について、
まずはお気軽に
ご相談・お問い合わせください!
06-6923-9000
お問い合わせ